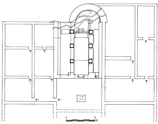
תיק- אתר זה מתייחס לשטח נרחב, מדרום לרעות, הכולל שלוש גבעות – חדת בארית וקנובה – ובקעה קטנה שביניהן.
גבעות חדת בארית וקנובה מהוות חלק משטח נרחב בדרום-מזרח שטחה של העיר מודיעין מכבים רעות, שטח המופיע במפות תכנון העיר (תכנית מד-2020) כשטח לתכנון עתידי (בשלב זה, גבעות אלו נמצאות מחוץ לשטח הבנוי של העיר).
על פסגת שלושת גבעות אלו ממוקמות חורבות עתיקות ועל מדרונות הגבעות מתקיימת צמחייה עשירה ומגוונת, טבעית ושרידי בוסתנים, נטע-אדם. גבעות בארית וקנובה מחוברות ביניהן באוכף טופוגרפי קטן, בעוד גבעת חדת שמצפון להן ניצבת לבדה (גבעת חדת מתחברת באוכף טופוגרפי אל גבעת נ.ג. 312 שממזרח, שהיא הגבעה הגבוהה ביותר באזור מודיעין. גבעת נ.ג. 312 לא נכללת בתחום תיק אתר זה).
לורם איפסום דולור סיט אמט, קונסקטורר אדיפיסינג אלית קונדימנטום קורוס בליקרה, נונסטי קלובר בריקנה סטום, לפריקך תצטריק לרטי




















































































